篠ケ瀬町897-4新築戸建

14.4万円 管理/共益費 -

静岡県浜松市中央区篠ケ瀬町897-4

東海道本線「天竜川」駅徒歩38分

価格
14.4万円 管理/共益費 -
間取り/面積
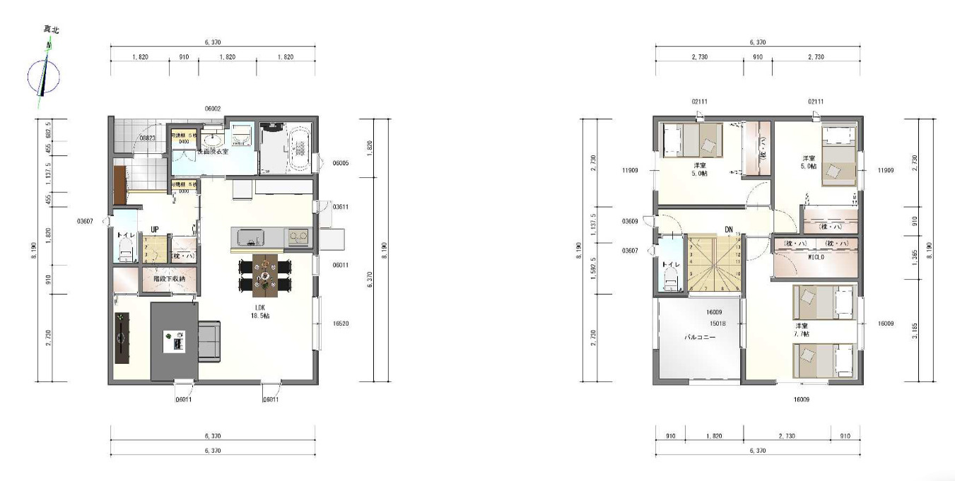
3LDK+S(納戸)/104.34㎡
所在地
静岡県浜松市中央区篠ケ瀬町897-4
築年
2025年5月(新築)
駐車
有(2台)
交通

東海道本線天竜川」駅 徒歩38分

篠ケ瀬町897-4新築戸建の基本情報

物件名
篠ケ瀬町897-4新築戸建
価格
14.4万円
管理/共益費
-
築年月
2025年5月(新築)
総戸数
1戸
所在地
静岡県浜松市中央区篠ケ瀬町897-4
交通

東海道本線天竜川」駅 徒歩38分

篠ケ瀬町897-4新築戸建の詳細情報

設備条件
  • ロードサイド
設備(その他)
    -
駐車場/月額
有(2台)/0円
用途地域
第一種住居
戸数
1戸 / -
取引態様
貸主
備考
通風システムが整った、住環境の良い安心の物件です。ニーズの高い、令和7年築の物件で、オシャレな室内が魅力的。こちらの物件には自走式駐車場があります。眺望良好な物件で魅力的です。地域密着型の当社だからこそ、物件情報のみならず浜松市中央区や東海道本線天竜川付近のエリア情報などを含めた各種ご案内が可能です。

篠ケ瀬町897-4新築戸建のコメント(おすすめポイント)

設備も間取りも申し分の無い、快適な住環境のある戸建て物件です。通風良好な条件は健康面でも大切です。そんな観点からもおすすめの一戸建てをご提供します。自走式駐車場がある物件です。眺望良好なエリアの物件で魅力的です。浜松市中央区や東海道本線天竜川付近の賃貸戸建てをお探しなら、当社があなたを全力でお手伝い致します。まずはお気軽にお問い合わせください。

篠ケ瀬町897-4新築戸建で募集中の物件

  1. 1-2階

    31.56坪 (104.34㎡)

    14.4万円(4562.74円/坪)

周辺施設

  • 五味八珍 天王店の画像

    中華料理

    五味八珍 天王店

    1091m(14分)

  • 杏林堂ドラッグストア 天王店の画像

    ドラッグストア

    杏林堂ドラッグストア 天王店

    1110m(14分)

  • 天竜川駅の画像

    天竜川駅

    1297m(17分)

  • マックスバリュ浜松和田店の画像

    スーパー

    マックスバリュ浜松和田店

    1438m(18分)

  • 浜松アリーナの画像

    その他

    浜松アリーナ

    1716m(22分)

  • イオンモール浜松市野の画像

    ショッピングセンター

    イオンモール浜松市野

    2692m(34分)

近隣の物件

  1. 浜松市中央区増楽町

    2LDK (46.40㎡)

    5.8万円

  2. 浜松市中央区増楽町

    1DK (30.87㎡)

    4.3万円

  3. 浜松市中央区入野町

    1K (35.12㎡)

    4.3万円

  4. 浜松市中央区大平台3丁目

    1LDK (41.10㎡)

    5万円

篠ケ瀬町897-4新築戸建

お気軽にお問い合わせください

LINEからお問い合わせ 無料お問い合わせ

マルショウ不動産

053-447-1115

9:00‐17:30

(休:日・祝)